preloader

Bliźniaki

Radzio_Koncepcja

Budynek mieszkalny jednorodzinny, dwulokalowy

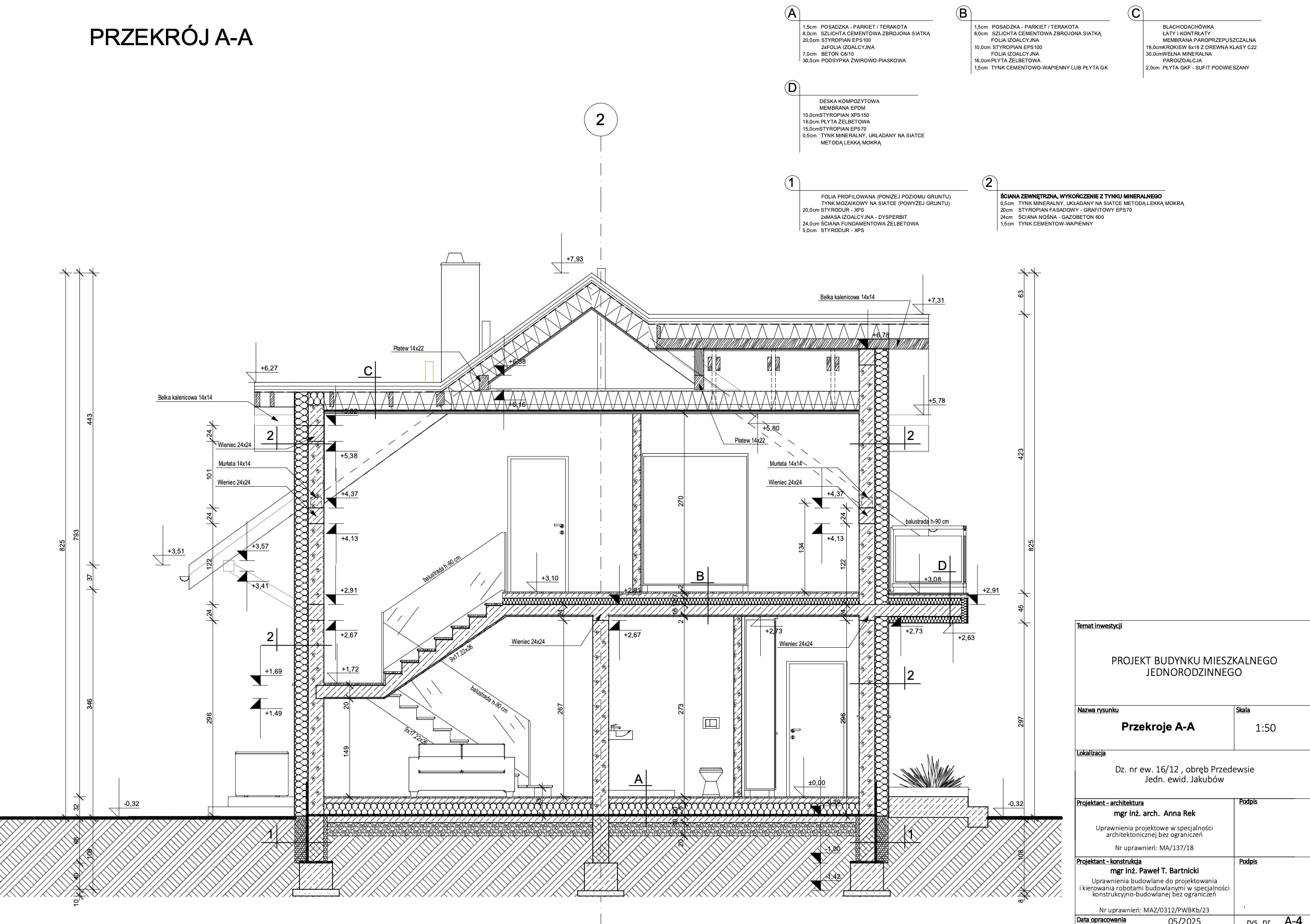
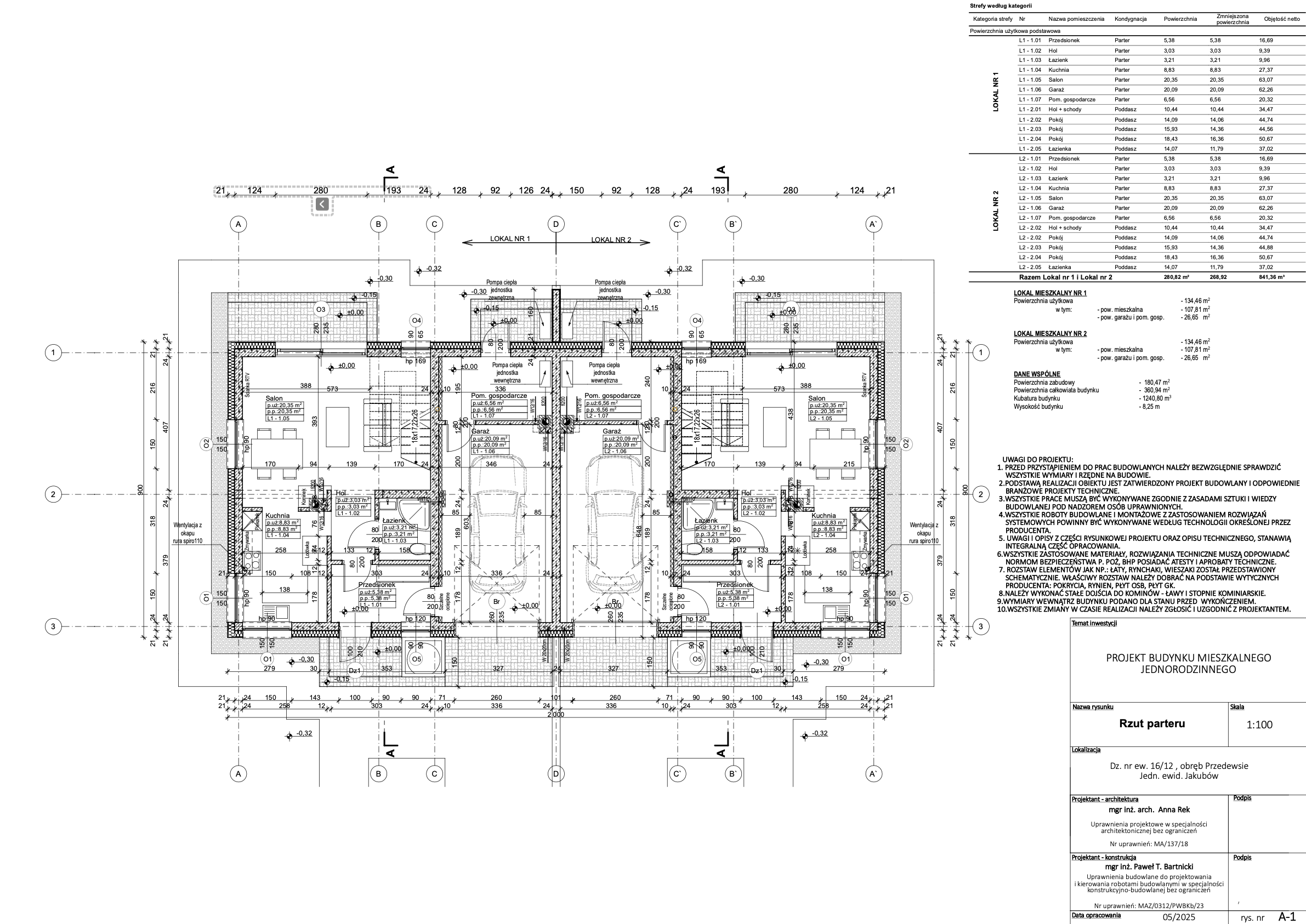
Dwukondygnacyjny, wolno stojący, niepodpiwniczony dom jednorodzinny składa się z dwóch lokali (L1 i L2). Parter obejmuje strefę dzienną z kuchnią, salonem z jadalnią, łazienką oraz część pomocniczą z garażem i pomieszczeniem gospodarczym. Poddasze to strefa prywatna z pokojami/sypialniami i łazienką.

zrzut-ekranu-2025-12-20-o-10-05-33-png

Symetryczna bryła i główne wejście

Główne wejście do lokali znajduje się w centralnej części elewacji frontowej, podkreślając symetrię budynku. Dach dwuspadowy z lukarnami ma nachylenie 36°, a pokrycie wykonano z blachodachówki modułowej w kolorze grafitowym.

zrzut-ekranu-2025-12-20-o-10-05-19-png

Elewacja i wykończenie zewnętrzne

Elewacja wykonana jest z tynku mineralnego w odcieniach bieli i szarości. Cokoły budynku wykończono tynkiem mozaikowym o strukturze przypominającej granit, w odcieniach szarości. Budynek harmonijnie wpisuje się w otoczenie, zarówno pod względem formy, jak i funkcji.

Zrzut ekranu 2025-12-20 o 10

Kluczowe wymiary i powierzchnie

  • Powierzchnia zabudowy: 180,47 m²
  • Powierzchnia użytkowa: 268,92 m² (sumarycznie dla L1 i L2)
  • Powierzchnia całkowita: 360,94 m²
  • Kubatura: 1240,80 m³
  • Wysokość w kalenicy: 8,25 m
  • Szerokość: 20,00 m, długość: 9,00 m
Zrzut ekranu 2025-12-20 o 10

Lokale mieszkalne

Lokal 1: powierzchnia użytkowa 134,46 m², w tym 107,81 m² mieszkalnej i 26,65 m² garażu i pom. gospodarczych


Lokal 2: powierzchnia użytkowa 134,46 m², w tym 107,81 m² mieszkalnej i 26,65 m² garażu i pom. gospodarczych

Radzio_Koncepcja_Osiedle Słoneczne Przedewsie

Działka i otoczenie

Działka nr 16/2 ma powierzchnię 803 m², a każdy lokal posiada udział 401,50 m². Dojazd do drogi publicznej zapewnia działka drogowa nr 136.